Tageslicht

im Überblick

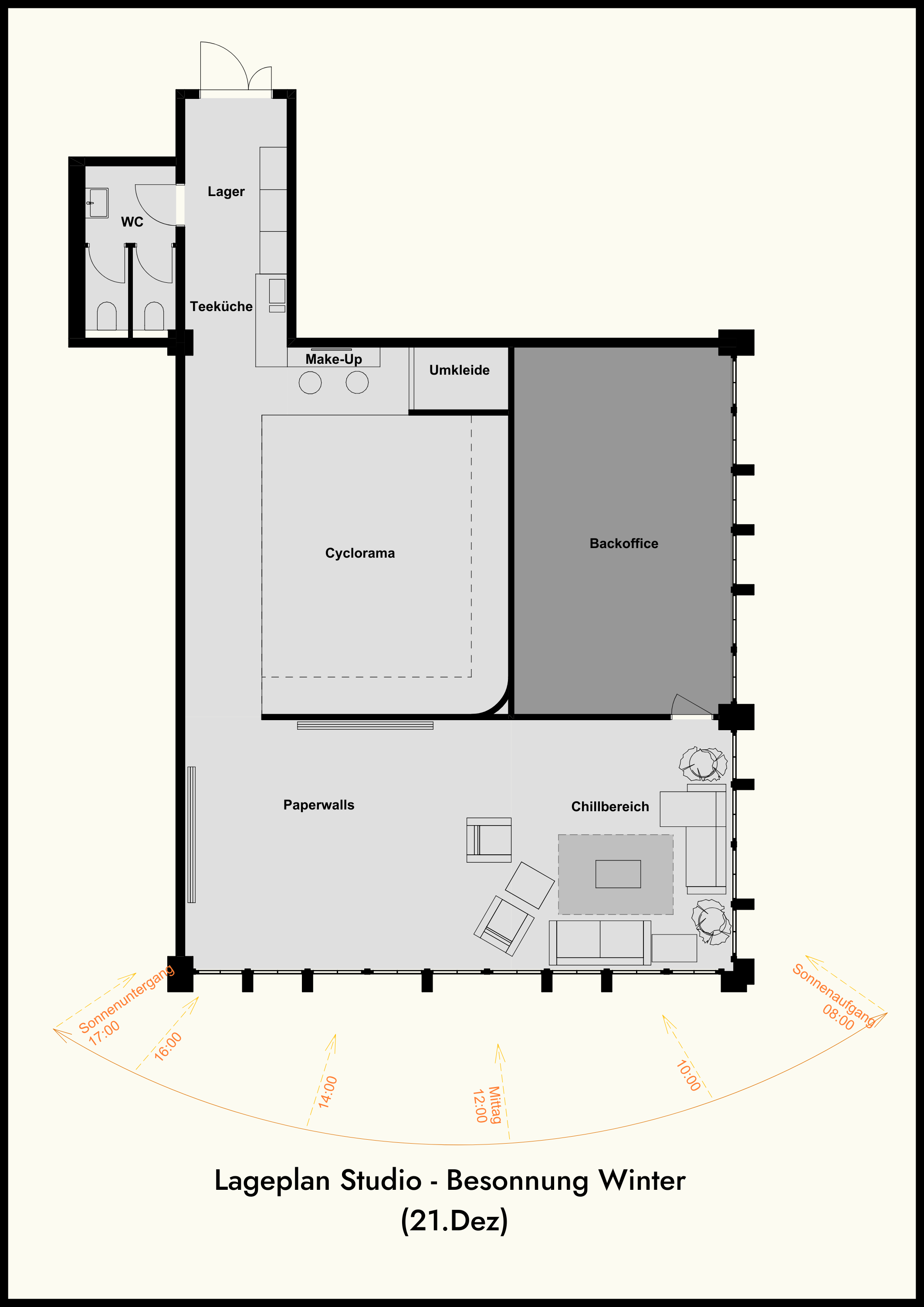
Je nach Jahreszeit fällt das Tageslicht unterschiedlich in den Paperwall- und Chillbereich. Mit den Plänen siehst du auf einen Blick, wann direkte Sonne zu erwarten ist und wann das Licht weicher wirkt. So kannst du dein Setup, Timing und die gewünschte Stimmung besser planen.


Frühling-Herbst

Lageplan Studio - Besonnung Winter (21.Dez)

Sommer

Lageplan Studio - Besonnung Sommer (21.Jun)

Winter

Lageplan Studio - Besonnung Frühling/Herbst (21.Mär/21.Sep)